Maison 7 pièces 4 chambres Courdimanche
499 000 €
Honoraires inclus à la charge du vendeurDescription
Bienvenue chez Abriculteurs, l’agence familiale qui s’engage à un service d’exception. Découvrez une présentation soignée de ce bien : des photos du programme et un plan détaillé pour vous projeter. Faites confiance à notre expertise pour transformer vos projets immobiliers en réussites remarquables.
🏡 A vendre, une spacieuse maison de près de 190 m² habitables, édifiée en 1978 sur une parcelle paysagée de plus de 1 000 m².
Située Rue Raymond Berrivin, au cœur d’un quartier calme et recherché de Courdimanche, elle séduit par ses volumes généreux, sa luminosité traversante (Nord-Est / Sud-Ouest) et son excellent état d’entretien.
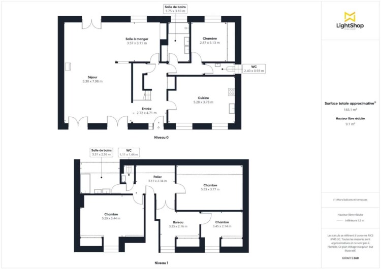
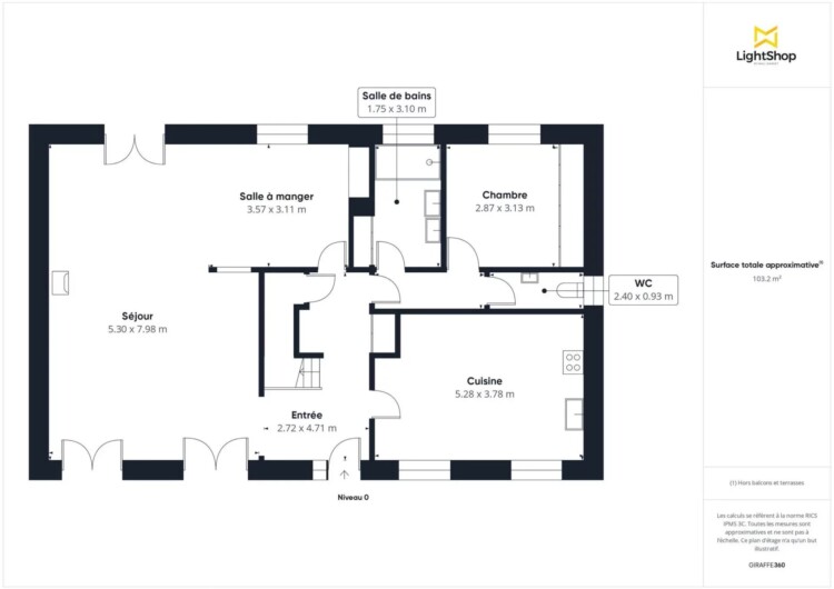
Rez-de-jardin :
- Vaste entrée avec dégagement
- Cuisine indépendante équipée de 20 m²
- Triple séjour traversant de 53 m², lumineux, ouvrant sur une terrasse et un jardin arboré sans vis-à-vis (noisetiers, cerisiers…)
- Une chambre
- Salle d’eau
- WC séparés
Étage :
- 3 à 4 chambres selon vos besoins
- Salle de bain
- Second WC séparé
Confort & équipements :
- Chauffage : radiateurs à fluide végétal type norvégien et poêle à bois
- Double vitrage + volets roulants aluminium neufs
- Isolation complète (intérieure, extérieure, toiture et façade Ouest)
- VMC neuve
Sous-sol total de 100 m² (hauteur 2 m) :
- Garage, atelier, buanderie et espaces de stockage
- Ballon d’eau chaude Atlantic 300 L (2022)
- Adoucisseur d’eau
Atouts supplémentaires :
- Maison très bien entretenue
- HSP : 2,70 m
- Portail et porte de garage motorisés
- Nombreux rangements
- Façade et toiture en parfait état
- Consommations très faibles : env. 800 €/an électricité, 200 €/an eau, 10 stères bois/an
- 2 abris à bois (20 stères)
- Stationnement jusqu’à 6 véhicules sur la parcelle
- Bonus : possibilité d’acquérir gracieusement 0,5 ha de bois pour une autonomie en bois de chauffage
Cadre de vie et proximité
À 100 m : boulangerie, tabac, poste, cabinet médical, coiffeur
Supérette en cours d’ouverture
Carrefour Market à 10 min à pied
Écoles maternelle et primaire dans le village
Gare de Cergy-le-Haut à 15–20 min à pied
📌 Taxe foncière : 2 850 €/an
👉 Une maison familiale idéale, alliant confort, espace et praticité, dans un environnement calme, verdoyant et proche de toutes commodités.
Contactez-nous pour organiser une visite !
Prix de vente : 499 000€ TTC (Honoraires Abriculteurs à la charge du vendeur)
Les informations sur les risques auxquels ce bien est exposé sont disponibles sur le site Géorisques : : www.georisques.gouv.fr
Annonce rédigée sous la responsabilité éditoriale de Mme Audrey HEISER , agent commercial (EI), immatriculé au RSAC de PONTOISE sous le n° 517 949 368, sans détention de fonds, agissant pour le compte de la SARL Abriculteurs immobilier, au capital de 5 000 €, immatriculée sous le SIREN n° 837 704 584, titulaire de la carte professionnelle n° CPI 7501 2018 000 025 842 délivrée par la CCI de Paris Île-de-France, dont le représentant légal est M. Adrien Piot, ayant son siège social au 12 rue des Halles, 75001 Paris.
-
Caractéristiques du bien
- Pièce(s) 7
- Chambre(s) 4
- Date de construction 1978
- État Excellent état
- Prix 499 000 €
- Taxe foncière 2 850 € / an
- Chauffage Radiateur, Individuel, Electrique
- Eau chaude Chauffe-eau, Individuel
- Eaux usées Tout à l'égout
-
Équipements
- Double vitrage
- Portail électrique
- Volets roulants électriques
- Adoucisseur d'eau
- Fibre optique
- Fenêtre PVC
- Clôture
- Internet
- Alarme
-
Performance énergétique
Consommations énergétiques
- a
- b
- c
- d
- e
- f
- g
Émissions de gaz à effet de serre
- a
- b
- c
- d
- e
- f
- g
Montant estimé des dépenses annuelles pour un usage standard : entre 2190 € et 2970 €
Découvrir les points d’intérêt autour du bien
Pour afficher plus de points d’intérêts, veuillez sélectionner l’icône de localisation
Simuler votre emprunt

Audrey HEISER
se tient à votre disposition pour vous faire visiter ce bien.


























































































































