-
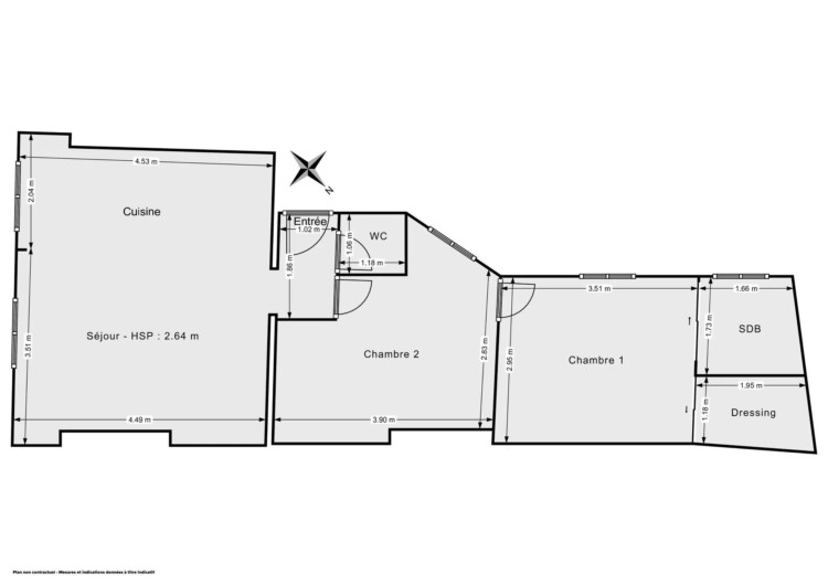
Caractéristiques du bien
- Surface Carrez 51.64 m²
- Pièce(s) 3
- Chambre(s) 2
- Salle(s) de bains 1
- Exposition Est
- Date de construction 1890
- État Bon état
- Prix VENDU
- Chauffage Radiateur, Electrique
-
Équipements
- Double vitrage
- Interphone
- Porte blindée
- Digicode
- Fibre optique
-
Performance énergétique
Consommations énergétiques
- a
- b
- c
- d
- e
- f
- g
Découvrir les points d’intérêt autour du bien
Pour afficher plus de points d’intérêts, veuillez sélectionner l’icône de localisation
Simuler votre emprunt

Stéphanie ANRIOT
se tient à votre disposition pour vous trouver le bien idéal.














































































