-
Caractéristiques du bien
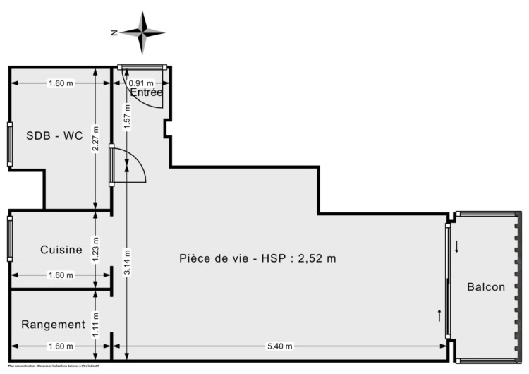
- Surface Carrez 23 m²
- Pièce(s) 1
- Salle(s) de bains 1
- Toilette(s) 1
- Vue Dégagée
- Exposition Sud
- Date de construction 1971
- État À rafraîchir
- Prix VENDU
- Charges 1 523 € / An
- Taxe foncière 547 € / an
- Chauffage Radiateur, Collectif
- Eau chaude Chaudière, Collectif
-
Équipements
- Ascenseur
- Interphone
- Digicode
-
Performance énergétique
Consommations énergétiques
- a
- b
- c
- d
- e
- f
- g
Émissions de gaz à effet de serre
- a
- b
- c
- d
- e
- f
- g
Montant estimé des dépenses annuelles pour un usage standard : entre 900 € et 1260 €
Découvrir les points d’intérêt autour du bien
Pour afficher plus de points d’intérêts, veuillez sélectionner l’icône de localisation
Simuler votre emprunt

Isabelle FRANCIS
se tient à votre disposition pour vous trouver le bien idéal.



































































