-
Caractéristiques du bien
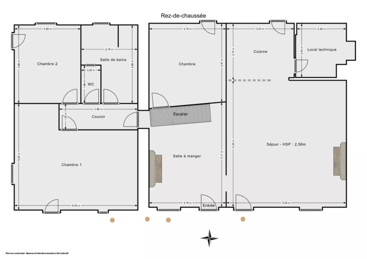
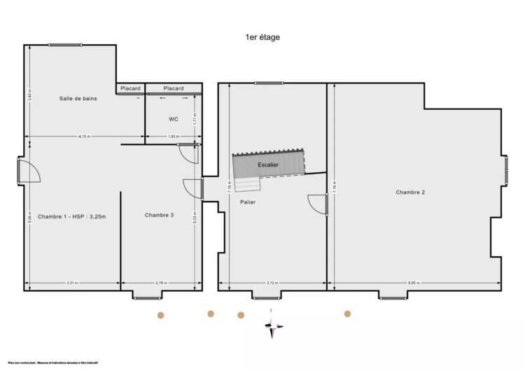
- Pièce(s) 6
- Chambre(s) 5
- Salle(s) de bains 1
- Toilette(s) 2
- Exposition Sud
- Date de construction 1850
- Date de rénovation 1995
- État À rafraîchir
- Prix VENDU
- Eau chaude Pompe à chaleur, Individuel
- Eaux usées Fosse toutes eaux
-
Équipements
- Cheminée
- Double vitrage
- Forage
- Clôture
-
Performance énergétique
Consommations énergétiques
- a
- b
- c
- d
- e
- f
- g
Émissions de gaz à effet de serre
- a
- b
- c
- d
- e
- f
- g
Montant estimé des dépenses annuelles pour un usage standard : entre 1980 € et 2730 €
Découvrir les points d’intérêt autour du bien
Pour afficher plus de points d’intérêts, veuillez sélectionner l’icône de localisation
Simuler votre emprunt

Adrien PIOT
se tient à votre disposition pour vous trouver le bien idéal.



































































































