Maison 6 pièces 4 chambres Callian
650 000 €
Honoraires inclus à la charge du vendeurDescription
Bienvenue chez Abriculteurs, l’agence familiale qui place l’humain et la qualité de service au cœur de chaque projet. Avec nous, bénéficiez d’une présentation haut de gamme : photos professionnelles, plan détaillé et visite virtuelle immersive pour vous projeter en toute sérénité.
À découvrir : une villa récente de 150 m² environ, nichée sur un terrain plat et clos et paysager de 1 413 m² avec piscine, à deux pas du pittoresque village de Callian.
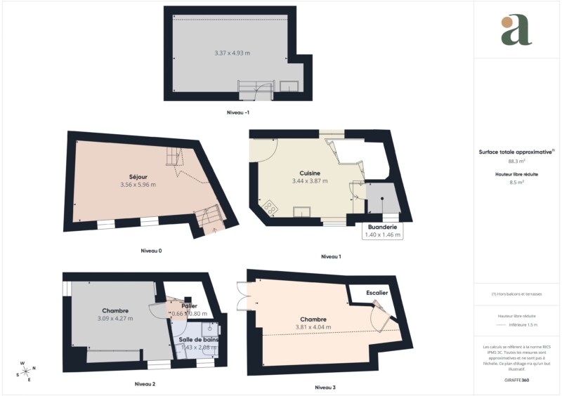
Les espaces intérieurs :
- Un vaste séjour lumineux de 50 m² avec cuisine ouverte équipée
- Un cellier / buanderie pratique
- Un salon TV chaleureux
- Une chambre et une salle d’eau au rez-de-chaussée
- À l’étage, trois chambres supplémentaires et une salle de bains complètent la partie nuit.
Les extérieurs et annexes
- Piscine récente avec pompe à chaleur et filtration neuves
- Atelier et chalet de rangement offrant de multiples usages
- Terrain plat et clos avec double accès
- 4 places de parking
Le tout dans un quartier résidentiel calme et verdoyant, proche des commerces, écoles et commodités.
Les + du bien
- Climatisation réversible (PAC air/air 2022) + poêle à bois
- Fenêtres PVC double vitrage et volets
- Entièrement rénovée
- Pas d’amiante (analyses négatives)
Informations pratiques
- Taxe foncière : 1 450 €/an
- Estimation chauffage/énergie : entre 1 790 € et 2 490 € (DPE 2025)
- DPE : Classe D – Conso conventionnelle 25 650 kWhEP/an – Émissions 816 kg CO₂/an
- Bien hors copropriété
Prix de vente : 650 000 € TTC (Honoraires Abriculteurs à la charge du vendeur)
Ce bien a retenu votre intérêt ? Pour organiser la visite avec nous, rien de plus simple : prenez rendez-vous en ligne au moment qui vous convient le mieux.
Les informations sur les risques auxquels ce bien est exposé sont disponibles sur le site Géorisques : www.georisques.gouv.fr
Annonce rédigée sous la responsabilité éditoriale de la SASU Inov’You, immatriculée au RSAC de Nice sous le n° 851 223 610, siège social situé 14 rue Foncet, 06000 Nice, sans détention de fonds, agissant pour le compte de la SARL Abriculteurs Immobilier, immatriculée sous le SIREN n° 837 704 584, titulaire de la carte professionnelle n° CPI 7501 2018 000 025 842, délivrée par la CCI de Paris Île-de-France.
-
Caractéristiques du bien
- Pièce(s) 6
- Chambre(s) 4
- Salle(s) de bains 2
- Toilette(s) 2
- Vue Dégagée
- Date de construction 2003
- Date de rénovation 2024
- État Excellent état
- Prix 650 000 €
- Chauffage Radiateur, Individuel, Electrique
- Eau chaude Individuel
- Eaux usées Fosse septique
-
Équipements
- Clôture
- Portail électrique
- Barres de fenêtres
- Vide sanitaire
- Fenêtres coulissantes
- Volets roulants électriques
- Internet
- Éclairage extérieur
- Cheminée
- Thermostat connecté
- Accès handicapé
- Fibre optique
- Air conditionné
- Alarme incendie
- Alarme
- Ventilation double flux
- Double vitrage
- Fenêtre PVC
- Piscine
-
Performance énergétique
Consommations énergétiques
- a
- b
- c
- d
- e
- f
- g
Émissions de gaz à effet de serre
- a
- b
- c
- d
- e
- f
- g
Montant estimé des dépenses annuelles pour un usage standard : entre 1810 € et 2460 €
Découvrir les points d’intérêt autour du bien
Pour afficher plus de points d’intérêts, veuillez sélectionner l’icône de localisation
Simuler votre emprunt

Mathilde MARTIN
se tient à votre disposition pour vous faire visiter ce bien.








































































































