Maison 6 pièces 4 chambres Béthisy-Saint-Martin
360 000 €
Honoraires inclus à la charge du vendeurDescription
Bienvenue chez Abriculteurs, l’agence familiale qui s’engage à un service immobilier d’exception. Découvrez une présentation soignée de ce bien : des photos professionnelles, un plan détaillé et une visite virtuelle immersive pour vous projeter dans un cadre unique. Faites confiance à notre expertise pour transformer vos projets immobiliers en réussites remarquables.
Située à Béthisy-Saint-Martin, dans un environnement calme et verdoyant, cette maison contemporaine de 2010 développe 152 m² habitables sur trois niveaux. Elle se trouve à seulement 15 minutes de la gare de Crépy-en-Valois (accès direct Paris), un emplacement idéal pour les familles recherchant confort et proximité des commodités.
Édifiée sur une parcelle de 380 m² avec terrasse et balcon, la maison séduit par sa luminosité, ses volumes et son excellent état général.
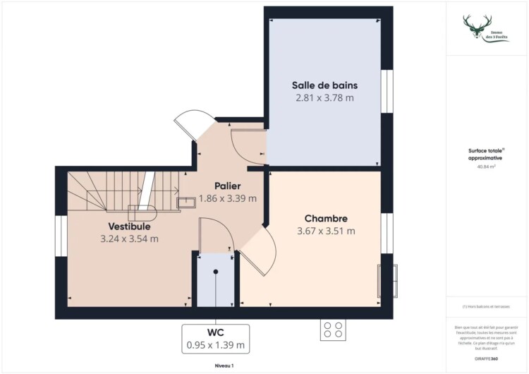
Disposition intérieure :
Le rez-de-chaussée comprend une entrée, un vaste séjour traversant baigné de lumière naturelle, une cuisine fonctionnelle donnant accès à la terrasse ainsi qu’une chambre et un WC séparé.
Aux étages, quatre chambres confortables dont une suite parentale, une salle de bains et des espaces de rangement bien pensés complètent ce bien.
Les + du bien :
- Construction récente (2010), bien entretenue
- Volumes agréables et belle luminosité
- Terrasse et balcon pour profiter des extérieurs
- Proximité immédiate des écoles, commerces et transports (dans un rayon de 6 km)
- Accès rapide à la gare de Crépy-en-Valois (Paris en 45 min)
Consommation énergétique :199 kWhEP/m².an (Classe D)
Estimation des émissions : 10 kg CO₂/m².an (Classe B)
Informations pratiques :
- Surface habitable : 152 m²
- Surface du terrain : 380 m²
- Nombre de pièces : 6 (4 chambres)
- Classe énergie : en cours
- Tout-à-l’égout
Prix de vente : 360 000 € TTC (Honoraires à la charge du vendeur)
Vente en délégation de mandat
Prenez rendez-vous en ligne pour une visite à votre convenance.
Les informations sur les risques auxquels ce bien est exposé sont disponibles sur le site Géorisques : : www.georisques.gouv.fr
Annonce rédigée par M. Adrien Piot, représentant légal de la SARL Abriculteurs immobilier, au capital de 5 000 €, immatriculée sous le SIREN n° 837 704 584, titulaire de la carte professionnelle n° CPI 7501 2018 000 025 842 délivrée par la CCI de Paris Île-de-France, ayant son siège social au 12 rue des Halles, 75001 Paris.
-
Caractéristiques du bien
- Pièce(s) 6
- Chambre(s) 4
- Salle(s) de bains 2
- Toilette(s) 2
- Vue Vis-à-vis
- Exposition Nord
- Date de construction 2010
- État Bon état
- Prix 360 000 €
- Chauffage Convecteur, Individuel, Electrique
-
Équipements
- Alarme
- Portail électrique
- Vidéophone
-
Performance énergétique
Consommations énergétiques
- a
- b
- c
- d
- e
- f
- g
Émissions de gaz à effet de serre
- a
- b
- c
- d
- e
- f
- g
Découvrir les points d’intérêt autour du bien
Pour afficher plus de points d’intérêts, veuillez sélectionner l’icône de localisation
Simuler votre emprunt

Adrien PIOT
se tient à votre disposition pour vous faire visiter ce bien.


























































































