-
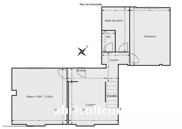
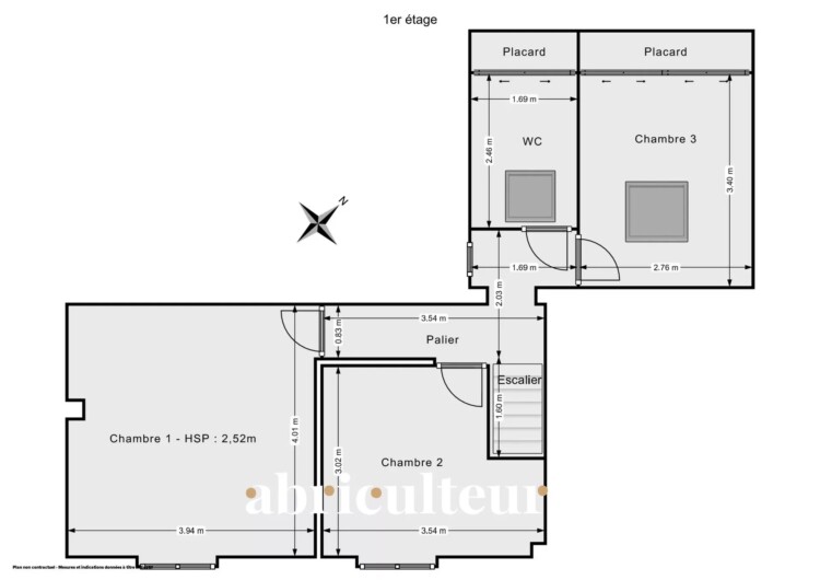
Caractéristiques du bien
- Pièce(s) 5
- Chambre(s) 3
- Salle(s) de bains 1
- Vue Dégagée
- Prix VENDU
- Chauffage Radiateur, Individuel, Gaz
- Eau chaude Chaudière, Individuel
-
Équipements
- Cheminée
- Double vitrage
-
Performance énergétique
Consommations énergétiques
- a
- b
- c
- d
- e
- f
- g
Émissions de gaz à effet de serre
- a
- b
- c
- d
- e
- f
- g
Découvrir les points d’intérêt autour du bien
Pour afficher plus de points d’intérêts, veuillez sélectionner l’icône de localisation
Simuler votre emprunt

Adrien PIOT
se tient à votre disposition pour vous trouver le bien idéal.


















































































