-
Caractéristiques du bien
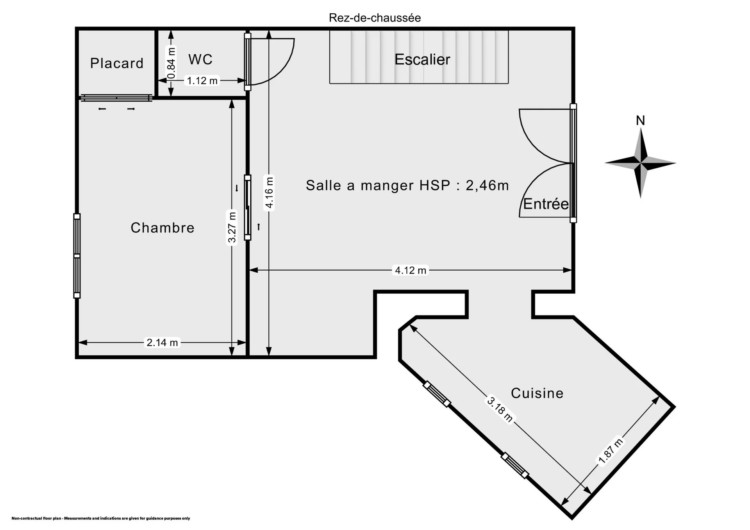
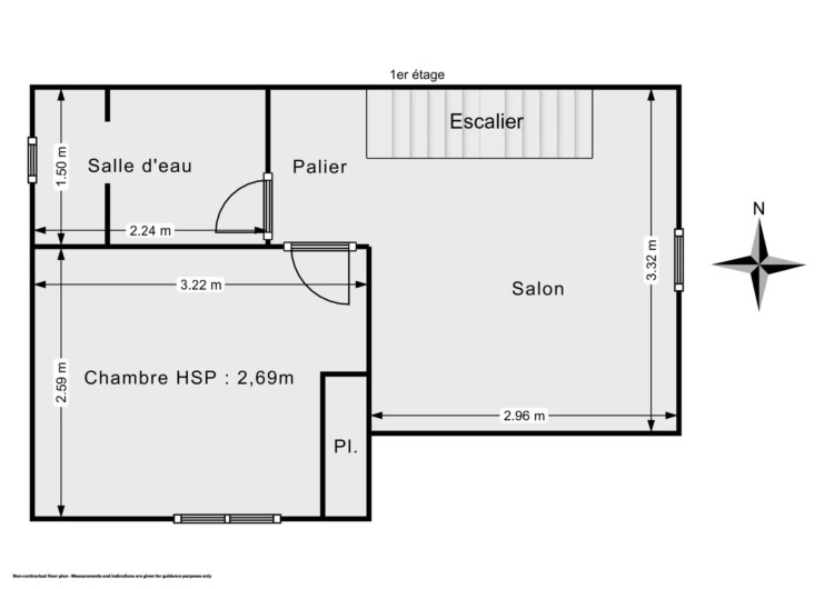
- Pièce(s) 3
- Exposition Sud-est
- État Excellent état
- Prix VENDU
- Taxe foncière 451 € / an
- Chauffage Convecteur, Individuel, Electrique
- Eau chaude Chauffe-eau, Individuel
- Eaux usées Tout à l'égout
Découvrir les points d’intérêt autour du bien
Pour afficher plus de points d’intérêts, veuillez sélectionner l’icône de localisation
Simuler votre emprunt

Benoit MONTY
se tient à votre disposition pour vous trouver le bien idéal.





























































