-
Caractéristiques du bien
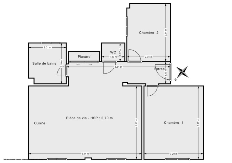
- Surface Carrez 59 m²
- Pièce(s) 3
- Chambre(s) 2
- Salle(s) de bains 1
- Toilette(s) 1
- Exposition Nord-ouest
- Date de construction 1930
- Date de rénovation 2019
- État Bon état
- Prix VENDU
- Charges 3 138 € / An
- Chauffage Radiateur, Collectif, Gaz
- Eau chaude Chauffe-eau, Individuel
- Eaux usées Tout à l'égout
-
Équipements
- Internet
- Ascenseur
- Interphone
- Digicode
- Concierge
-
Performance énergétique
Consommations énergétiques
- a
- b
- c
- d
- e
- f
- g
Émissions de gaz à effet de serre
- a
- b
- c
- d
- e
- f
- g
Montant estimé des dépenses annuelles pour un usage standard : entre 1141 € et 1543 €
Découvrir les points d’intérêt autour du bien
Pour afficher plus de points d’intérêts, veuillez sélectionner l’icône de localisation
Simuler votre emprunt

Céline GLINEUR
se tient à votre disposition pour vous trouver le bien idéal.


























































