-
Caractéristiques du bien
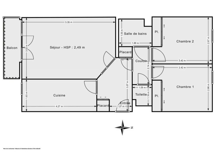
- Surface Carrez 58 m²
- Pièce(s) 3
- Chambre(s) 2
- Salle(s) de bains 1
- Toilette(s) 1
- Vue Aperçu
- Date de construction 2007
- État À rafraîchir
- Prix VENDU
- Charges 816 € / An
- Taxe foncière 1 222 € / an
- Chauffage Radiateur, Individuel, Electrique
- Eau chaude Individuel
- Eaux usées Tout à l'égout
-
Équipements
- Double vitrage
- Interphone
-
Performance énergétique
Consommations énergétiques
- a
- b
- c
- d
- e
- f
- g
Émissions de gaz à effet de serre
- a
- b
- c
- d
- e
- f
- g
Découvrir les points d’intérêt autour du bien
Pour afficher plus de points d’intérêts, veuillez sélectionner l’icône de localisation
Simuler votre emprunt

Isabelle FRANCIS
se tient à votre disposition pour vous trouver le bien idéal.




























































