-
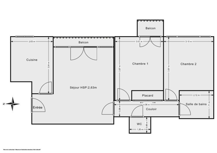
Caractéristiques du bien
- Surface Carrez 57 m²
- Pièce(s) 3
- Chambre(s) 2
- Salle(s) de bains 1
- Toilette(s) 1
- Vue Dégagée
- Exposition Est
- Date de construction 1960
- Date de rénovation 2019
- État Bon état
- Prix VENDU
- Charges 2 064 € / An
- Chauffage Central, Collectif, Gaz
- Eau chaude Chauffe-eau, Individuel
- Eaux usées Tout à l'égout
-
Équipements
- Tennis
- Stores
- Fibre optique
- Terrain de jeux
- Fenêtre PVC
- Ascenseur
- Gardien
- Double vitrage
- Interphone
- Porte blindée
-
Performance énergétique
Consommations énergétiques
- a
- b
- c
- d
- e
- f
- g
Émissions de gaz à effet de serre
- a
- b
- c
- d
- e
- f
- g
Découvrir les points d’intérêt autour du bien
Pour afficher plus de points d’intérêts, veuillez sélectionner l’icône de localisation
Simuler votre emprunt

Isabelle FRANCIS
se tient à votre disposition pour vous trouver le bien idéal.














































































