-
Caractéristiques du bien
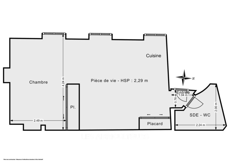
- Surface Carrez 32 m²
- Pièce(s) 2
- Vue Dégagée
- Date de construction 1900
- Date de rénovation 2014
- État Excellent état
- Prix VENDU
- Taxe foncière 443 € / an
-
Équipements
- Double vitrage
- Porte blindée
- Digicode
Découvrir les points d’intérêt autour du bien
Pour afficher plus de points d’intérêts, veuillez sélectionner l’icône de localisation
Simuler votre emprunt

Stéphanie ANRIOT
se tient à votre disposition pour vous trouver le bien idéal.






















































