-
Caractéristiques du bien
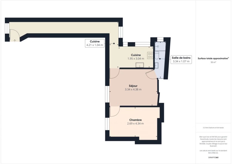
- Pièce(s) 2
- Chambre(s) 1
- Salle(s) d'eau 1
- Toilette(s) 1
- Date de construction 1900
- Prix VENDU
- Charges 104 € / An
- Taxe foncière 547 € / an
Découvrir les points d’intérêt autour du bien
Pour afficher plus de points d’intérêts, veuillez sélectionner l’icône de localisation
Simuler votre emprunt

Adrien PIOT
se tient à votre disposition pour vous trouver le bien idéal.













































