-
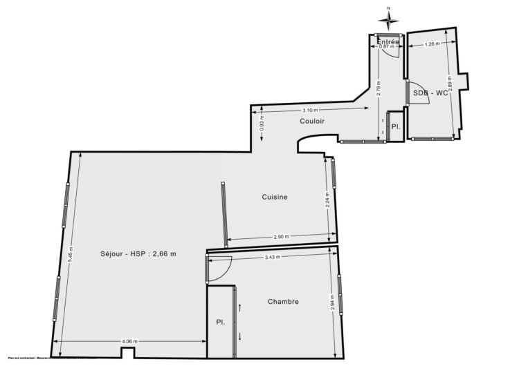
Caractéristiques du bien
- Surface Carrez 48 m²
- Pièce(s) 2
- Chambre(s) 1
- Salle(s) de bains 1
- Toilette(s) 1
- Vue Vis-à-vis
- Exposition Sud-ouest
- Date de rénovation 2021
- État Excellent état
- Prix VENDU
- Charges 2 172 € / An
- Taxe foncière 354 € / an
- Chauffage Radiateur, Individuel, Electrique
- Eau chaude Chauffe-eau, Individuel
- Eaux usées Tout à l'égout
-
Équipements
- Ascenseur
- Double vitrage
- Digicode
-
Performance énergétique
Consommations énergétiques
- a
- b
- c
- d
- e
- f
- g
Émissions de gaz à effet de serre
- a
- b
- c
- d
- e
- f
- g
Découvrir les points d’intérêt autour du bien
Pour afficher plus de points d’intérêts, veuillez sélectionner l’icône de localisation
Simuler votre emprunt

Isabelle FRANCIS
se tient à votre disposition pour vous trouver le bien idéal.




































































