-
Caractéristiques du bien
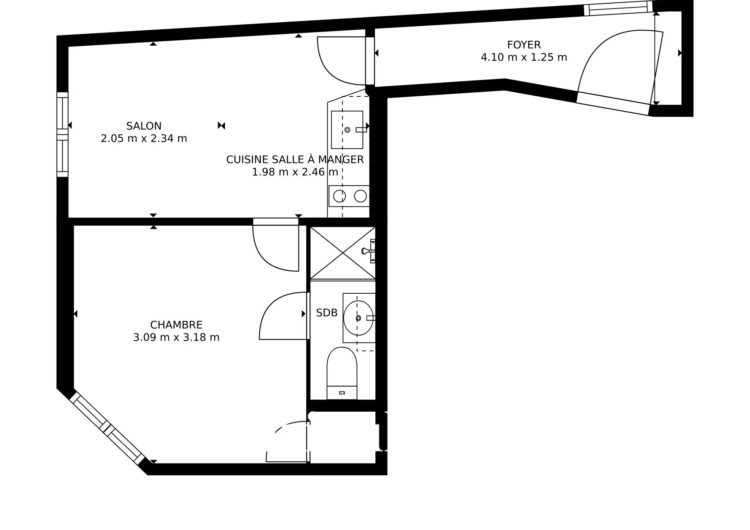
- Surface Carrez 26 m²
- Pièce(s) 2
- Chambre(s) 1
- Vue Dégagée
- Date de construction 1890
- État À rafraîchir
- Prix VENDU
- Charges 244 € / Trimestre
- Chauffage Radiateur, Electrique
-
Équipements
- Digicode
- Double vitrage
- Porte blindée
-
Performance énergétique
Consommations énergétiques
- a
- b
- c
- d
- e
- f
- g
Émissions de gaz à effet de serre
- a
- b
- c
- d
- e
- f
- g
Découvrir les points d’intérêt autour du bien
Pour afficher plus de points d’intérêts, veuillez sélectionner l’icône de localisation
Simuler votre emprunt

Stéphanie ANRIOT
se tient à votre disposition pour vous trouver le bien idéal.














































































