-
Caractéristiques du bien
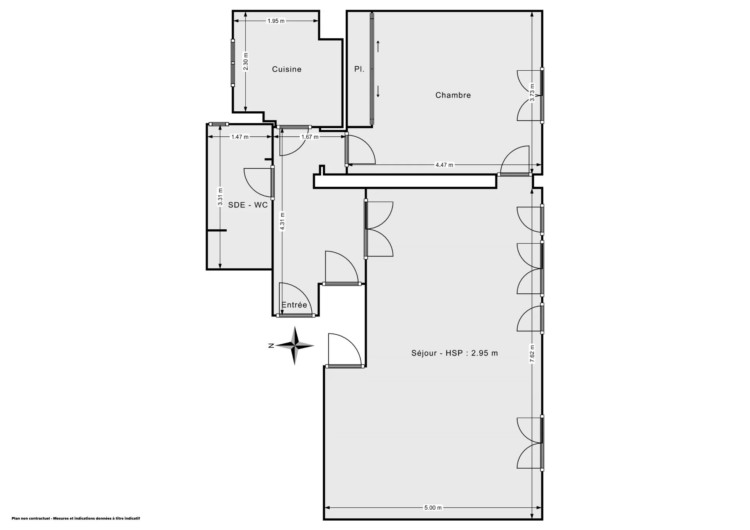
- Surface Carrez 70 m²
- Pièce(s) 2
- Chambre(s) 1
- Salle(s) d'eau 1
- Toilette(s) 1
- Vue Vis-à-vis
- Exposition Sud-ouest
- État À rafraîchir
- Prix VENDU
- Charges 4 841 € / An
- Taxe foncière 1 091 € / an
- Chauffage Radiateur, Collectif, Fioul / Mazout
- Eau chaude Chaudière, Collectif
- Eaux usées Tout à l'égout
-
Équipements
- Double vitrage
- Vidéophone
- Cheminée
- Ascenseur
- Gardien
-
Performance énergétique
Consommations énergétiques
- a
- b
- c
- d
- e
- f
- g
Émissions de gaz à effet de serre
- a
- b
- c
- d
- e
- f
- g
Montant estimé des dépenses annuelles pour un usage standard : entre 1410 € et 1950 €
Découvrir les points d’intérêt autour du bien
Pour afficher plus de points d’intérêts, veuillez sélectionner l’icône de localisation
Simuler votre emprunt

Isabelle FRANCIS
se tient à votre disposition pour vous trouver le bien idéal.



























































