-
Caractéristiques du bien
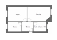
- Surface Carrez 42.35 m²
- Pièce(s) 2
- Chambre(s) 1
- Salle(s) de bains 1
- Toilette(s) 1
- Vue Dégagée
- Exposition Ouest
- Date de construction 1930
- État À rénover
- Prix VENDU
- Charges 2 144 € / An
- Taxe foncière 673 € / an
- Chauffage Radiateur, Collectif, Gaz
- Eau chaude Chaudière, Collectif
- Eaux usées Tout à l'égout
-
Équipements
- Ascenseur
- Interphone
- Digicode
- Fibre optique
-
Performance énergétique
Consommations énergétiques
- a
- b
- c
- d
- e
- f
- g
Émissions de gaz à effet de serre
- a
- b
- c
- d
- e
- f
- g
Montant estimé des dépenses annuelles pour un usage standard : entre 690 € et 990 €
Découvrir les points d’intérêt autour du bien
Pour afficher plus de points d’intérêts, veuillez sélectionner l’icône de localisation
Simuler votre emprunt

Isabelle FRANCIS
se tient à votre disposition pour vous trouver le bien idéal.

































































