-
Caractéristiques du bien
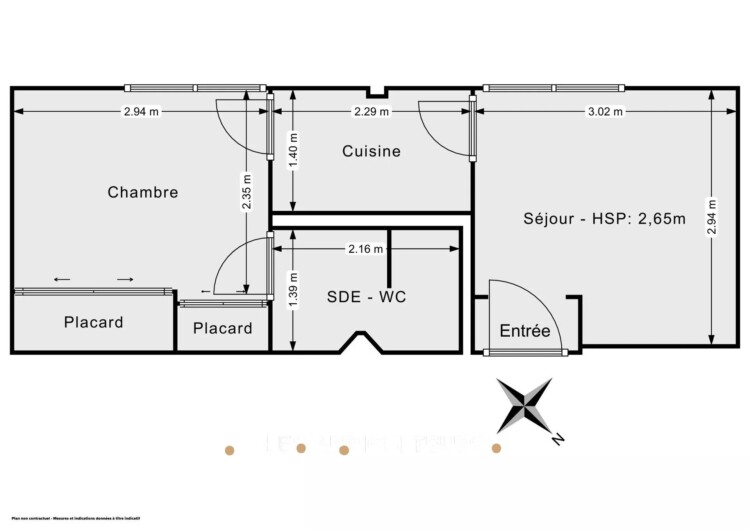
- Surface Carrez 23.27 m²
- Pièce(s) 2
- Chambre(s) 1
- Salle(s) d'eau 1
- Toilette(s) 1
- Vue Externe
- Date de construction 1928
- État À rafraîchir
- Prix VENDU
- Charges 2 160 € / An
- Taxe foncière 440 € / an
- Chauffage Central
- Eau chaude Individuel
Découvrir les points d’intérêt autour du bien
Pour afficher plus de points d’intérêts, veuillez sélectionner l’icône de localisation
Simuler votre emprunt

Céline GLINEUR
se tient à votre disposition pour vous trouver le bien idéal.













































































