-
Caractéristiques du bien
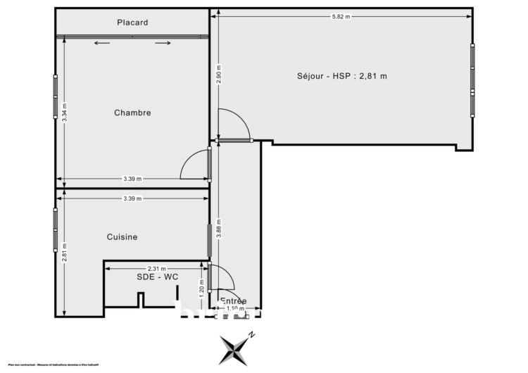
- Surface Carrez 44 m²
- Pièce(s) 2
- Chambre(s) 1
- Salle(s) d'eau 1
- Toilette(s) 1
- État Bon état
- Prix VENDU
- Charges 2 160 € / An
- Taxe foncière 524 € / an
- Chauffage Radiateur, Collectif, Gaz
- Eau chaude Chauffe-eau, Individuel
- Eaux usées Tout à l'égout
-
Équipements
- Ascenseur
- Double vitrage
- Interphone
- Concierge
-
Performance énergétique
Consommations énergétiques
- a
- b
- c
- d
- e
- f
- g
Émissions de gaz à effet de serre
- a
- b
- c
- d
- e
- f
- g
Découvrir les points d’intérêt autour du bien
Pour afficher plus de points d’intérêts, veuillez sélectionner l’icône de localisation
Simuler votre emprunt

Céline GLINEUR
se tient à votre disposition pour vous trouver le bien idéal.













































































