-
Caractéristiques du bien
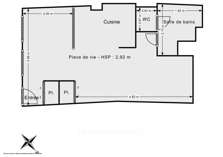
- Surface Carrez 27 m²
- Pièce(s) 1
- Salle(s) de bains 1
- Date de construction 1880
- État Bon état
- Prix VENDU
- Charges 1 680 € / An
- Taxe foncière 305 € / an
- Chauffage Radiateur, Electrique
-
Équipements
- Double vitrage
- Porte blindée
- Digicode
-
Performance énergétique
Consommations énergétiques
- a
- b
- c
- d
- e
- f
- g
Émissions de gaz à effet de serre
- a
- b
- c
- d
- e
- f
- g
Découvrir les points d’intérêt autour du bien
Pour afficher plus de points d’intérêts, veuillez sélectionner l’icône de localisation
Simuler votre emprunt

Stéphanie ANRIOT
se tient à votre disposition pour vous trouver le bien idéal.













































































