Terrain constructible Argenteuil
399 000 €
Honoraires inclus à la charge du vendeurDescription
Bienvenue chez Abriculteurs, l’agence familiale qui s’engage à un service d’exception. Faites confiance à notre expertise pour transformer vos projets immobiliers en réussites remarquables.
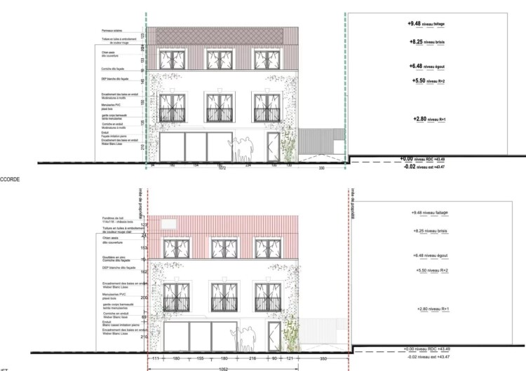
Présentation du projet : Sur un terrain arboré de 880 m², ce projet de construction RT 2012 offre 328 m² de surface de plancher, répartis en 2 grands duplex indépendants (environ 264 m² habitables) avec deux stationnements privatifs, jardin et espaces extérieurs. Bâti écologique en ossature bois, équipé d’une pompe à chaleur, poêle à bois et système de récupération des eaux pluviales.Le terrain comprend également un potager/verger de 700 m², idéal pour un cadre de vie sain ou une approche éco-responsable.
État d’avancement :
- Permis de construire obtenu le 30/12/2021, prorogé au 21/01/2027
- Études complètes réalisées (ESQ à DCE) – prêtes pour phase EXE
- Terrain viabilisé, eau et électricité raccordées (compteur actif)
Atouts investisseurs :
- Immeuble neuf RT 2012 – faible consommation énergétique
- Rendement brut estimé : 10 % acte en main selon scénario locatif optimisé
- Revenus potentiels : env. 160 000 €/an (projections locatives disponibles sur demande)Flexibilité d’aménagement : usage en résidence principale, investissement locatif meublé, colocation haut de gamme ou location saisonnière
- TVA réduite, secteur UCa, non soumis au permis de louer
Localisation privilégiée :
À seulement 25 min de Paris Saint-Lazare ou 40 min de La Défense porte à porte.
Quartier résidentiel recherché, calme et verdoyant, à 15 min à pied de la gare centrale (ligne J).
Proximité immédiate des transports (bus ligne 2), commerces et écoles.
Un investissement patrimonial et durable
Produit rare alliant performance énergétique, confort moderne et fort potentiel locatif.
Dossier complet sur demande (plans, études, projections financières).
Prix de vente : 399 000€ TTC (Honoraires Abriculteurs à la charge du vendeur)
Les informations sur les risques auxquels ce bien est exposé sont disponibles sur le site Géorisques : : www.georisques.gouv.fr
Annonce rédigée sous la responsabilité éditoriale de Mme Audrey HEISER , agent commercial (EI), immatriculé au RSAC de PONTOISE sous le n° 517 949 368, sans détention de fonds, agissant pour le compte de la SARL Abriculteurs immobilier, au capital de 5 000 €, immatriculée sous le SIREN n° 837 704 584, titulaire de la carte professionnelle n° CPI 7501 2018 000 025 842 délivrée par la CCI de Paris Île-de-France, dont le représentant légal est M. Adrien Piot, ayant son siège social au 12 rue des Halles, 75001 Paris.
-
Caractéristiques du bien
- Prix 399 000 €
Découvrir les points d’intérêt autour du bien
Pour afficher plus de points d’intérêts, veuillez sélectionner l’icône de localisation
Simuler votre emprunt

Audrey HEISER
se tient à votre disposition pour vous faire visiter ce bien.

















































































