-
Caractéristiques du bien
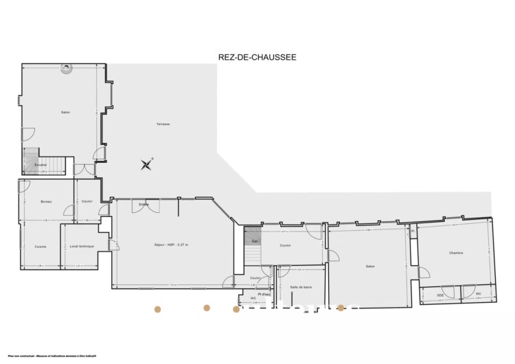
- Pièce(s) 8
- Date de construction 1850
- État Excellent état
- Prix VENDU
- Charges 2 500 € / An
- Taxe foncière 899 € / an
- Chauffage Radiateur, Electrique
- Eau chaude Pompe à chaleur, Individuel
- Eaux usées Fosse toutes eaux
-
Équipements
- Internet
- Cheminée
- Double vitrage
- Puits
-
Performance énergétique
Consommations énergétiques
- a
- b
- c
- d
- e
- f
- g
Émissions de gaz à effet de serre
- a
- b
- c
- d
- e
- f
- g
Découvrir les points d’intérêt autour du bien
Pour afficher plus de points d’intérêts, veuillez sélectionner l’icône de localisation
Simuler votre emprunt

Adrien PIOT
se tient à votre disposition pour vous trouver le bien idéal.


















































































