Maison 3 pièces 2 chambres Cornebarrieu
239 000 €
Honoraires inclus à la charge du vendeurDescription
Bienvenue chez Abriculteurs, l’agence familiale qui s’engage à un service d’exception. Découvrez une présentation soignée de ce bien : des photos professionnelles, un plan détaillé et une visite virtuelle immersive pour vous projeter. Faites confiance à notre expertise pour transformer vos projets immobiliers en réussites remarquables.
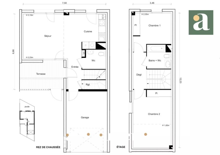
Découvrez cette villa T3 en duplex, située au sein de la résidence récente et appréciée Le Clos d’Agate, à Cornebarrieu.
La maison s’ouvre au rez-de-chaussée sur une entrée avec rangement, une cuisine ouverte moderne et fonctionnelle, équipée de meubles hauts et bas, plaques vitrocéramiques, hotte et emplacements pour four et lave-vaisselle.
La cuisine se prolonge sur un séjour lumineux, donnant accès à une terrasse et à un jardin privatif d’environ 32 m², idéal pour profiter des beaux jours.
Un WC indépendant complète ce niveau.
Le premier étage est composé de deux chambres avec rangements intégrés ainsi que d’une salle de bains avec WC.
Un garage fermé de 20,8 m² ainsi qu’une place de stationnement extérieure complètent ce bien.
Le logement bénéficie d’un chauffage individuel au gaz, offrant confort et maîtrise des consommations.
La villa est idéalement située à proximité des commerces, écoles, transports et bassins d’emploi aéronautiques, tout en conservant un environnement résidentiel calme.
Les + du bien :
- Villa récente en duplex
- Jardin privatif et terrasse
- Garage fermé + stationnement
- Bonne performance énergétique
- Résidence bien entretenue, sans procédure
À noter :
- Taxe foncière : 1 145 € / an
- Charges courantes annuelles : environ 553 € / an
(hors consommation individuelle de gaz)
- Coût annuel du chauffage : inclus dans les estimations énergétiques
- État du bien : bon état général
- Le bien est soumis au statut de copropriété, 105 lots
- Pas de procédure en cours
- Tout-à-l’égout : oui
Performance énergétique
- Consommation conventionnelle (kWhEP/m².an) : 89 (Classe C)
- Estimation des émissions (kg CO₂/m².an) : 17 (Classe C)
- Coût de l’énergie min / max : 650 € / 930 € / an
- Année de référence des prix : 2023
Prix de vente
239 000 € TTC
(Honoraires Abriculteurs à la charge du vendeur)
VENTE PAR DÉLÉGATION DE MANDAT
Ce bien a retenu votre intérêt ?
Pour organiser la visite avec nous, rien de plus simple : prenez rendez-vous en ligne au moment qui vous convient le mieux.
Les informations sur les risques auxquels ce bien est exposé sont disponibles sur le site Géorisques : www.georisques.gouv.fr
Annonce rédigée sous la responsabilité éditoriale de la SASU Inov’You, immatriculée au RSAC de Nice sous le n° 851 223 610, siège social situé 14 rue Foncet, 06000 Nice, sans détention de fonds, agissant pour le compte de la SARL Abriculteurs Immobilier, immatriculée sous le SIREN n° 837 704 584, titulaire de la carte professionnelle n° CPI 7501 2018 000 025 842, délivrée par la CCI de Paris Île-de-France.
-
Caractéristiques du bien
- Surface Carrez 66,16 m²
- Pièce(s) 3
- Chambre(s) 2
- Salle(s) de bains 1
- Toilette(s) 2
- Vue Dégagée
- État Bon état
- Prix 239 000 €
- Charges 553 € / An
- Chauffage Radiateur, Individuel, Gaz
- Eau chaude Chauffe-eau, Individuel
- Eaux usées Tout à l'égout
-
Équipements
- Double vitrage
- Stores électriques
- Fenêtre PVC
-
Performance énergétique
Consommations énergétiques
- a
- b
- c
- d
- e
- f
- g
Émissions de gaz à effet de serre
- a
- b
- c
- d
- e
- f
- g
Montant estimé des dépenses annuelles pour un usage standard : entre 670 € et 920 €
Découvrir les points d’intérêt autour du bien
Pour afficher plus de points d’intérêts, veuillez sélectionner l’icône de localisation
Simuler votre emprunt

Mathilde MARTIN
se tient à votre disposition pour vous faire visiter ce bien.

























































































