-
Caractéristiques du bien
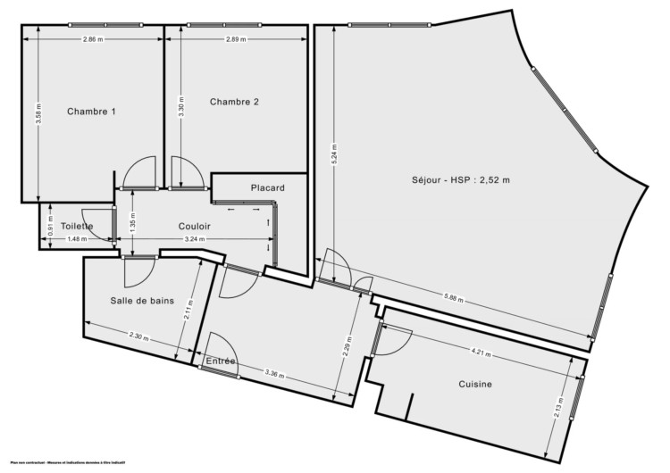
- Surface Carrez 78 m²
- Pièce(s) 3
- Chambre(s) 2
- Vue Dégagée
- Exposition Sud, Sud-est, Sud-ouest
- Date de construction 1990
- État Bon état
- Prix VENDU
- Charges 424 € / Trimestre
- Taxe foncière 1 056 € / an
- Chauffage Radiateur, Electrique
- Eau chaude Chauffe-eau, Individuel
-
Performance énergétique
Consommations énergétiques
- a
- b
- c
- d
- e
- f
- g
Émissions de gaz à effet de serre
- a
- b
- c
- d
- e
- f
- g
Découvrir les points d’intérêt autour du bien
Pour afficher plus de points d’intérêts, veuillez sélectionner l’icône de localisation
Simuler votre emprunt

Stéphanie ANRIOT
se tient à votre disposition pour vous trouver le bien idéal.




































































