-
Caractéristiques du bien
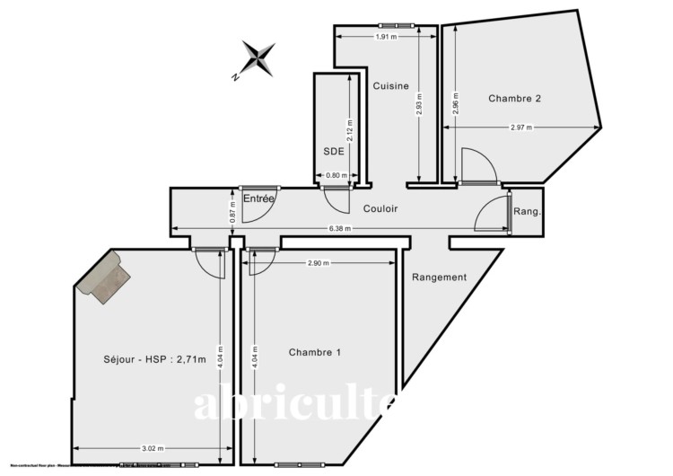
- Surface Carrez 47 m²
- Pièce(s) 3
- Chambre(s) 2
- Salle(s) de bains 1
- Vue Dégagée
- État À rafraîchir
- Prix VENDU
- Taxe foncière 773 € / an
- Chauffage Radiateur, Individuel, Gaz
- Eau chaude Chaudière, Individuel
-
Équipements
- Internet
- Double vitrage
- Fibre optique
- Jardin en copropriété
-
Performance énergétique
Consommations énergétiques
- a
- b
- c
- d
- e
- f
- g
Émissions de gaz à effet de serre
- a
- b
- c
- d
- e
- f
- g
Montant estimé des dépenses annuelles pour un usage standard : entre 1400 € et 1960 €
Découvrir les points d’intérêt autour du bien
Pour afficher plus de points d’intérêts, veuillez sélectionner l’icône de localisation
Simuler votre emprunt

Pascale FERRANTI
se tient à votre disposition pour vous trouver le bien idéal.







































































