-
Caractéristiques du bien
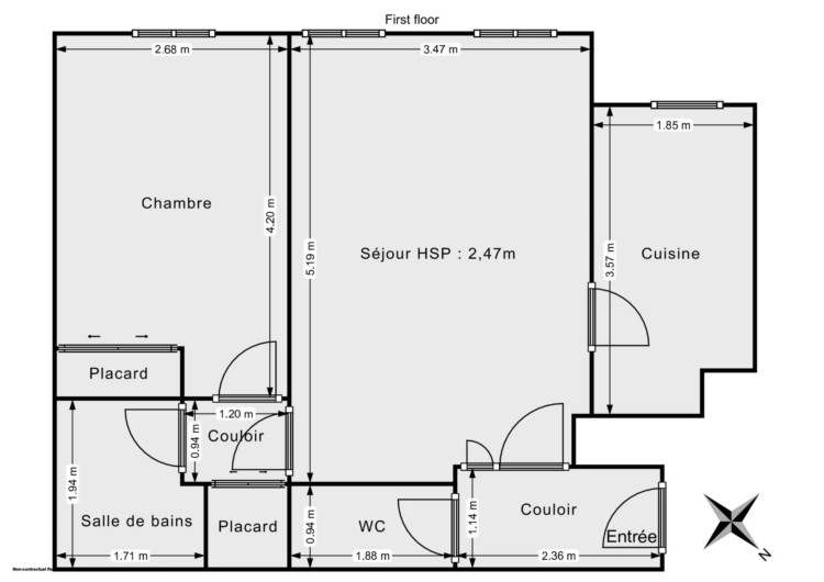
- Surface Carrez 44 m²
- Pièce(s) 2
- Chambre(s) 1
- Salle(s) de bains 1
- Vue Dégagée
- Exposition Sud-ouest
- Date de construction 2001
- Date de rénovation 2022
- État Excellent état
- Prix VENDU
- Charges 1 298 € / An
- Chauffage Radiateur, Individuel, Gaz
-
Équipements
- Double vitrage
- Interphone
- Porte blindée
- Stores
- Vidéophone
- Digicode
- Ascenseur
-
Performance énergétique
Consommations énergétiques
- a
- b
- c
- d
- e
- f
- g
Émissions de gaz à effet de serre
- a
- b
- c
- d
- e
- f
- g
Découvrir les points d’intérêt autour du bien
Pour afficher plus de points d’intérêts, veuillez sélectionner l’icône de localisation
Simuler votre emprunt

Stéphanie ANRIOT
se tient à votre disposition pour vous trouver le bien idéal.































































