Appartement 2 pièces 1 chambre Lyon 2ème / Ainay
319 000 €
Honoraires inclus à la charge du vendeurDescription
Bienvenue chez Abriculteurs, l’agence familiale qui s’engage à un service d’exception. Découvrez une présentation soignée de ce bien : des photos pro, un plan détaillé et une visite virtuelle immersive pour vous projeter. Faites confiance à notre expertise pour transformer vos projets immobiliers en réussites remarquables.
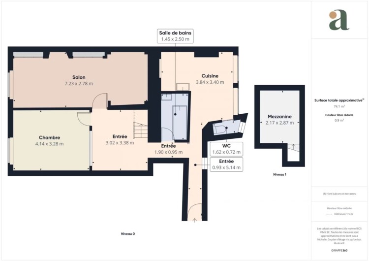
Découvrez ce T2 bis, à gros potentiel de valorisation, dans un immeuble du XIXème siècle. L’appartement s’ouvre sur un couloir qui distribue les différentes pièces. Au bout de ce dernier, vous découvrirez une spacieuse cuisine de 13 m², baignée de lumière naturelle grâce à ses fenêtres donnant sur la cour intérieure de l’immeuble. En revenant vers l’entrée, un tournant vous conduit d’abord à la salle de bain, puis à une petite entrée secondaire qui dessert la chambre ainsi que le salon. Ce dernier se distingue par son alcôve pleine de charme et sa mezzanine de 7 m² qui surplombe l’espace, offrant un coin nuit, bureau ou de rangement supplémentaire selon vos envies.
Situé rue de Condé, en plein cœur du quartier prisé d’Ainay, cet appartement bénéficie d’un emplacement central, à deux pas de la place Ampère et de la place Carnot, des commerces, de la gare, des écoles et des quais de Saône.
Les + du bien :
-Cachet des immeubles du XIXème (cheminée, spacieux, hauteur sous plafond...)
-Fort potentiel de rénovation
-Seceur prisé au coeur du quartier d'Ainay
À noter :
- Taxe foncière : 650 / an
- Chauffage individuel électrique
- Etat du bien : travaux à prévoir
- Le bien est soumis au statut de copropriété
- Pas de procédures en cours.
Consommation conventionnelle (kWhEP/m2.an) : 309 (E)
Estimation des émissions (kg CO2/m2.an) : 10 (B)
Coût de l'énergie min / max : 1620€ / 2230€
Année de référence des prix : 2021
Logement à consommation énergétique excessive.
Prix de vente : 319 000 € TTC (Honoraires Abriculteurs à la charge du vendeur)
Ce bien a retenu votre intérêt ? Pour organiser la visite avec nous, rien de plus simple, prenez rendez-vous en ligne au moment qui vous convient le mieux.
Les informations sur les risques auxquels ce bien est exposé sont disponibles sur le site Géorisques : : www.georisques.gouv.fr
Annonce rédigée sous la responsabilité éditoriale de Mme Anne-Charlotte SEDANO, agent commercial (EI), immatriculé au RSAC de LYON sous le n° 902594365, sans détention de fonds, agissant pour le compte de la SARL Abriculteurs immobilier, au capital de 5 000 €, immatriculée sous le SIREN n° 837 704 584, titulaire de la carte professionnelle n° CPI 7501 2018 000 025 842 délivrée par la CCI de Paris Île-de-France, dont le représentant légal est M. Adrien Piot, ayant son siège social au 12 rue des Halles, 75001 Paris.
-
Caractéristiques du bien
- Surface Carrez 71 m²
- Pièce(s) 2
- Chambre(s) 1
- Salle(s) de bains 1
- Vue Vis-à-vis
- Exposition Nord-est, Nord-ouest
- État À rénover
- Prix 319 000 €
- Taxe foncière 651 € / an
- Chauffage Radiateur, Individuel, Electrique
- Eau chaude Chauffe-eau, Individuel
- Eaux usées Tout à l'égout
-
Équipements
- Internet
- Digicode
- Fibre optique
- Fenêtre PVC
- Local à vélo
-
Performance énergétique
Consommations énergétiques
- a
- b
- c
- d
- e
- f
- g
Émissions de gaz à effet de serre
- a
- b
- c
- d
- e
- f
- g
Montant estimé des dépenses annuelles pour un usage standard : entre 1630 € et 2210 €
Découvrir les points d’intérêt autour du bien
Pour afficher plus de points d’intérêts, veuillez sélectionner l’icône de localisation
Simuler votre emprunt

Anne-Charlotte SEDANO
se tient à votre disposition pour vous faire visiter ce bien.




































































