Appartement 11 pièces 5 chambres Senlis
870 000 €
Honoraires inclus à la charge du vendeurDescription
Bienvenue chez Abriculteurs, l’agence familiale qui s’engage à un service immobilier d’exception. Découvrez une présentation soignée de ce bien : des photos professionnelles, un plan détaillé et une visite virtuelle immersive pour vous projeter dans un cadre unique. Faites confiance à notre expertise pour transformer vos projets immobiliers en réussites remarquables.
Située dans un environnement calme et verdoyant, cette maison lumineuse de 200 m² est édifiée dans un clos résidentiel, à seulement 10 minutes à pied du centre historique de Senlis. Un cadre idéal pour les familles recherchant tranquillité et proximité des commodités.
Entourée d’un jardin arboré avec terrasse, elle séduit par sa luminosité, ses volumes généreux et son agencement parfaitement pensé pour une vie de famille confortable.
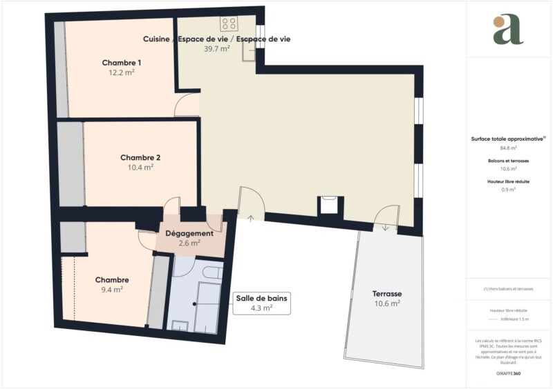
Le rez-de-chaussée accueille une entrée avec rangements, un bureau pouvant faire office de chambre, un double séjour traversant baigné de lumière naturelle, une belle cuisine indépendante entièrement équipée, deux chambres, une salle de bains et un WC séparé.
À l’étage, la suite parentale avec salle d’eau privative s’accompagne de deux autres chambres et d’un second WC, permettant à chacun de profiter de son propre espace.
Les + du bien :
- Chaudière à gaz à condensation neuve,
- Volumes généreux et agencement fonctionnel
- Jardin et terrasse exposés pour un ensoleillement optimal
- Sous-sol total avec nombreuses possibilités
- Maison très bien entretenue et rénovée avec soin
Informations pratiques
- Classe énergie : D (245 kWhEP/m².an)
Émissions de CO₂ : D (38 kg CO₂/m².an)
Estimation des coûts annuels d’énergie : entre 3500 € et 4790 €
- Taxe foncière : 2663 €
- Tout à l'égout
Prix de vente : 870 000€ TTC (Honoraires à la charge du vendeur)
Vente en délégation de mandat
Prenez rendez-vous en ligne pour une visite à votre convenance.
Les informations sur les risques auxquels ce bien est exposé sont disponibles sur le site Géorisques : : www.georisques.gouv.fr
Annonce rédigée par M. Adrien Piot, représentant légal de la SARL Abriculteurs immobilier, au capital de 5 000 €, immatriculée sous le SIREN n° 837 704 584, titulaire de la carte professionnelle n° CPI 7501 2018 000 025 842 délivrée par la CCI de Paris Île-de-France, ayant son siège social au 12 rue des Halles, 75001 Paris.
-
Caractéristiques du bien
- Surface Carrez 200 m²
- Pièce(s) 11
- Chambre(s) 5
- Salle(s) d'eau 2
- Vue Dégagée
- Date de construction 1968
- Prix 870 000 €
- Taxe foncière 2 663 € / an
- Chauffage Central, Individuel, Gaz
- Eau chaude Individuel
-
Performance énergétique
Consommations énergétiques
- a
- b
- c
- d
- e
- f
- g
Émissions de gaz à effet de serre
- a
- b
- c
- d
- e
- f
- g
Montant estimé des dépenses annuelles pour un usage standard : entre 3500 € et 4760 €
Découvrir les points d’intérêt autour du bien
Pour afficher plus de points d’intérêts, veuillez sélectionner l’icône de localisation
Simuler votre emprunt

Adrien PIOT
se tient à votre disposition pour vous faire visiter ce bien.









































































