-
Caractéristiques du bien
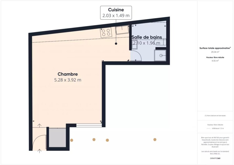
- Pièce(s) 1
- Salle(s) d'eau 1
- Toilette(s) 1
- Vue Vis-à-vis
- Date de construction 1780
- État Bon état
- Prix VENDU
- Charges 513 € / Trimestre
- Taxe foncière 673 € / an
- Chauffage Radiateur, Individuel, Electrique
- Eau chaude Chauffe-eau, Individuel
- Eaux usées Tout à l'égout
-
Équipements
- Internet
- Double vitrage
- Digicode
-
Performance énergétique
Consommations énergétiques
- a
- b
- c
- d
- e
- f
- g
Émissions de gaz à effet de serre
- a
- b
- c
- d
- e
- f
- g
Montant estimé des dépenses annuelles pour un usage standard : entre 503 € et 680 €
Découvrir les points d’intérêt autour du bien
Pour afficher plus de points d’intérêts, veuillez sélectionner l’icône de localisation
Simuler votre emprunt

Pascale FERRANTI
se tient à votre disposition pour vous trouver le bien idéal.








































































