Maison 5 pièces 4 chambres Basse Indre
344 850 €
Honoraire à la charge de l'acheteurDescription
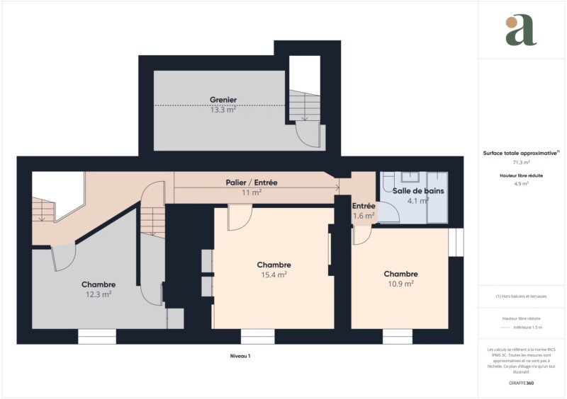
Sur les bords de Loire, à proximité de toutes les commodités et du bac de Basse-Indre, jolie maison ancienne d'environ 110m².
Exposée Sud/Sud-Est, elle se compose d'une entrée sur la pièce de vie, cuisine séparée, première chambre avec salle d'eau privative et un premier wc séparé. À l'étage, un palier dessert deux belles chambres, un bureau pouvant faire office de chambre d'appoint, une salle de bain et un second wc séparé. Au sous-sol, un dégagement dessert une 4e/5e chambre avec accès direct par l'extérieur, un wc, une buanderie et une lingerie. À l'extérieur, une lumineuse cour pavée permet de profiter de bons moments au soleil. Possibilité d'acquérir un grand garage double en sus.
Les + du bien:
- Emplacement idéal à Basse-Indre, proche de toutes les commodités
- Maison ancienne avec beaucoup de cachet
- Superficie confortable et possibilité de 4 voire 5 chambres
Informations pratiques:
- Chauffage individuel au gaz (chaudière à condensation)
- Taxe foncière: 1.403€/an
Performances énergétiques :
- Consommation conventionnelle : 273 kWhEP/m².an (Classe E)
- Estimation des émissions : 60 kg CO₂/m².an (Classe E)
- Coût de l’énergie : entre 2.630 € et 3.610 € par an (référence 2021, 2022, 2023)
Prix de vente : 330.000 € TTC (Hors Honoraires Agence)
Honoraires à la charge de l'acquéreur de 14.850 €, représentant un total de 344.850 € (Honoraires Agence Inclus) soit 4,5 % du prix de vente.
Ce bien a retenu votre intérêt ? Pour organiser la visite avec nous, rien de plus simple, prenez rendez-vous en ligne au moment qui vous convient le mieux.
Les informations sur les risques auxquels ce bien est exposé sont disponibles sur le site Géorisques : : www.georisques.gouv.fr
Annonce rédigée sous la responsabilité éditoriale de M. Benoit MONTY, agent commercial (EI), immatriculé au RSAC de NANTES sous le n°913240313, sans détention de fonds, agissant pour le compte de la SARL Abriculteurs immobilier, au capital de 5 000 €, immatriculée sous le SIREN n° 837 704 584, titulaire de la carte professionnelle n° CPI 7501 2018 000 025 842 délivrée par la CCI de Paris Île-de-France, dont le représentant légal est M. Adrien Piot, ayant son siège social au 12 rue des Halles, 75001 Paris.
-
Caractéristiques du bien
- Pièce(s) 5
- Chambre(s) 4
- Salle(s) de bains 1
- Salle(s) d'eau 1
- Toilette(s) 2
- Exposition Est, Sud
- Prix 344 850 €
- Taxe foncière 1 403 € / an
- Chauffage Radiateur, Individuel, Gaz
- Eau chaude Chaudière, Individuel
- Eaux usées Tout à l'égout
-
Équipements
- Double vitrage
- Volets roulants électriques
- Thermostat connecté
- Fenêtre PVC
- Internet
-
Performance énergétique
Consommations énergétiques
- a
- b
- c
- d
- e
- f
- g
Émissions de gaz à effet de serre
- a
- b
- c
- d
- e
- f
- g
Montant estimé des dépenses annuelles pour un usage standard : entre 2630 € et 3160 €
Découvrir les points d’intérêt autour du bien
Pour afficher plus de points d’intérêts, veuillez sélectionner l’icône de localisation
Simuler votre emprunt

Benoit MONTY
se tient à votre disposition pour vous faire visiter ce bien.









































































































